Die Meldung in Bildern
Co-Working für Anwälte
Umbau in Antwerpen von ono architectuur
Bild 22/27
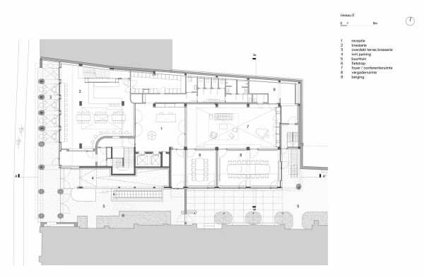
Grundriss Erdgeschoss
Bild: ono architectuur