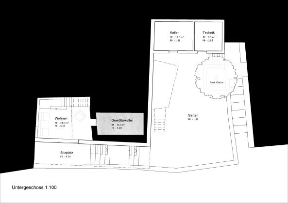
Fassadismus; Schweiz; Umbau; Kulisse; Denkmalpflege; Denkmalschutz; Neubau; Regensberg; KAnton Zürich; Haus Lendemann; L3 P Architekten; Fachwerkfassade

Bild 22/30

Bild: L3P