Die Meldung in Bildern
Arbeiten am Ensemble
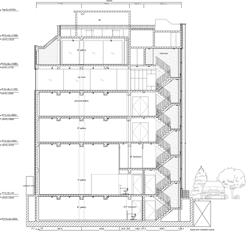
Umbau für eine Galerie in Seoul von Schemata Architects
Bild 38/38
Schnitt
Bild: Schemata Architects