Umbau eines Reihenhauses in Antwerpen von Poot architectuur
Bild 11/14
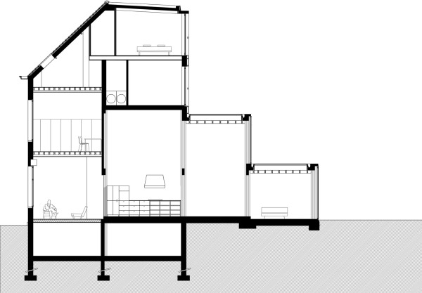
Schnitt AA
Bild: Poot architectuur