Die Meldung in Bildern
Metallisches Inlay
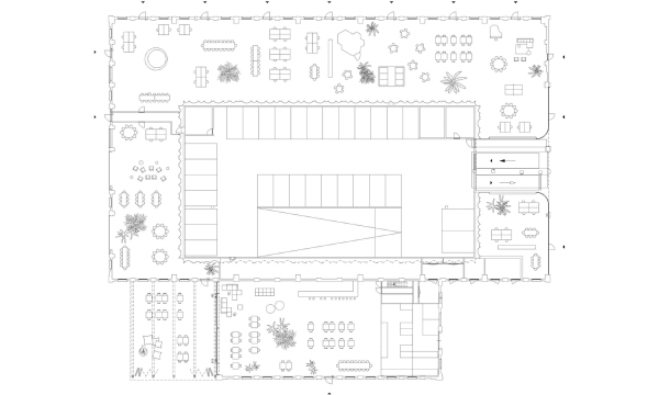
Umbau einer Werkhalle in Utrecht von Studioninedots
Bild 13/18
Grundriss EG
Bild: Studioninedots