Die Meldung in Bildern
Berghotel in den Dolomiten
Umbau auf der Seiser Alm von noa*
Bild 27/31
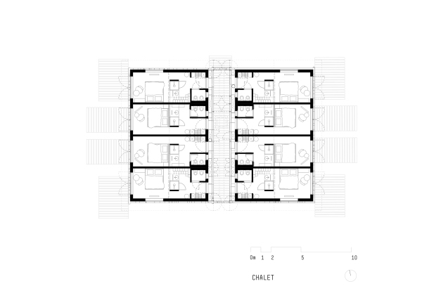
Grundriss Chalet