Die Meldung in Bildern
Wohnen auf 13 Ebenen
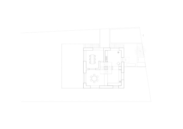
Turmhaus von Löser Lott Architekten in Dresden
Bild 18/20
Grundriss
Bild: Löser Lott Architekten