Die Meldung in Bildern
Zum Abschied VIP
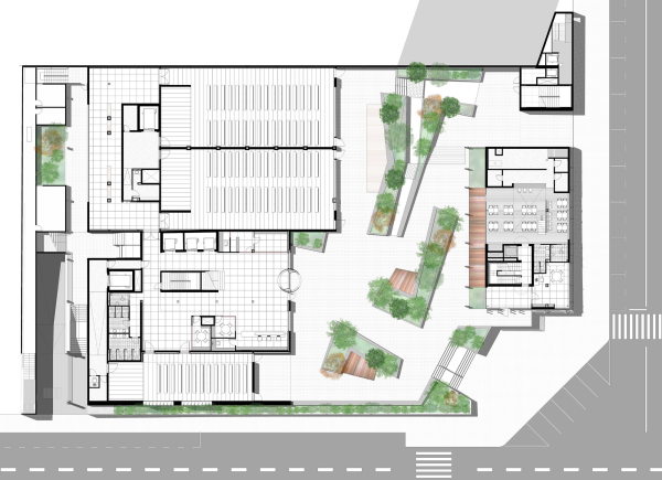
Trauerzentrum in Barcelona von JFA
Bild 20/30
Erdgeschoss
Bild: JFA