2014, 2012, JSWD, Architektur, Städtebau, Essen, Quartier, Chaix & Morel, Bauabschnitt, Thyssen Krupp, Campus, Städtebau, Stadt, Büro, Verwaltung, Westflanke, Miniapolis, Westflanke, Typologie, Konferenzzentrum, Gussstahlfabrik, Gebäudeflügel, Deutsches Rotes Kreuz, Headquarter, Corporate Architecture. Stahl, Metall, Aluminium, Loggia, Kinder, Kindertagesstätte, Stadtumbau, urban renewal, industrial area, Atrium, Gussstahlfabrik, 1818, JSWD Architekten, Essen, Köln, 45143

Bild 30/32

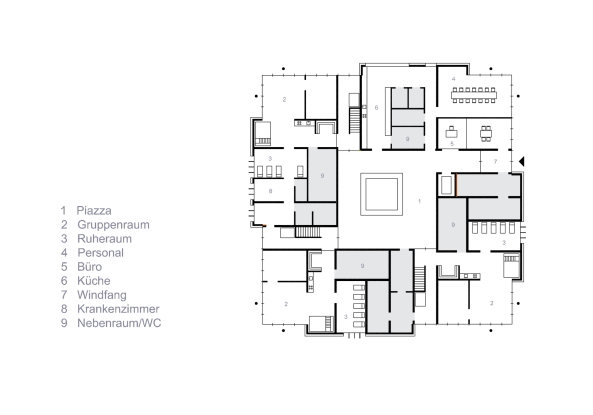
Kindertagesstätte, Grundriss Erdgeschoss