Thomas Hillig saniert und ergänzt Gewerbehof in Berlin-Kreuzberg
Bild 30/37
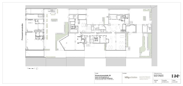
Grundriss EG: Der Neubau links, die beiden Altbauten rechts
Bild: Thomas Hillig Architekten