Theater, theater, Aluminiumfassade, almuminum facade, aluminum panels, Agglomeration, suburbia, Chaix & Moix, Théâtre-Sénart, Lieusaint, Novelis,Trophées Eiffel d'architecture acier, Stahlbau, Frankreich, Paris

Bild 28/32

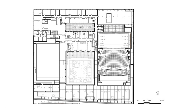
Grundriss Ebene 2