Die Meldung in Bildern
Spiel mit der Zeit
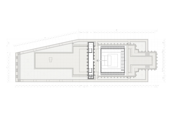
Theater in Danzig von Renato Rizzi
Bild 32/40
Grundriss 3. Obergeschoss