Die Meldung in Bildern
Spiel mit der Zeit
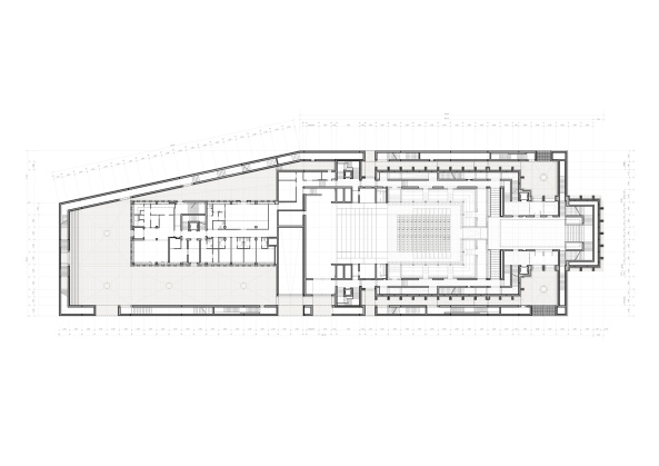
Theater in Danzig von Renato Rizzi
Bild 30/40
Grundriss Erdgeschoss