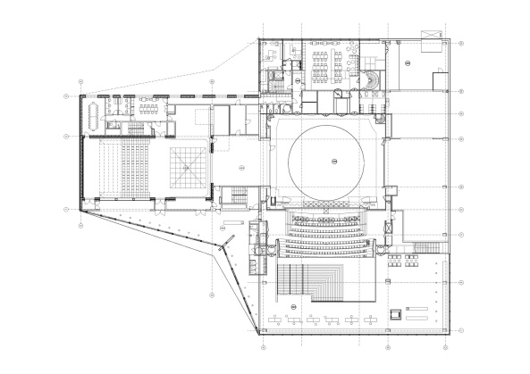
ALA Architects; Tuomas Uusheimo; Kuopio City Theatre; Theater; Umbau; Sanierung; Erweiterungsbau; Ergänzungsbau; geknitterte Fassade; faltige Fassade; Faserbeton; Betonpaneele; löwengelb; Finnland; Architektur;

Bild 23/30

Bild: ALA Architects