Baunetz, Architektur, Meldungen, Architekturprojekte, China, Shanxi, Ruicheng County, Urbanus, Wang Hui, Tempel, Sanierung, Renovierung, Yang Chaoying, Yin Jerry, Five Dragons Temple, Guang Ren Wang Temple, Revitalisierung, traditional chinese architecture, heritage, Five Dragon Spring, open air echibition, Freiluftmuseum

Bild 27/31

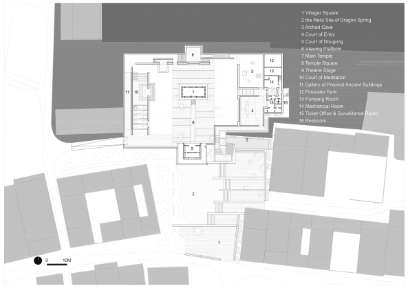
obere Ebene

Bild: Urbanus