Die Meldung in Bildern
Nurdachhaus für junge Familie
Takeru Shoji Architects in Niigata
Bild 17/19
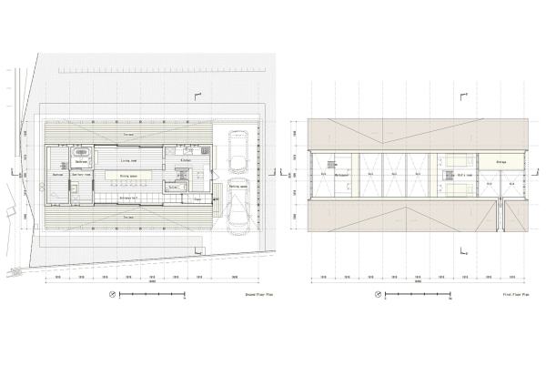
Grundriss
Bild: Takeru Shoji Architects