Die Meldung in Bildern
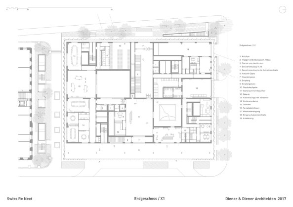
Arbeitslandschaft hinter Glasvorhang
Swiss Re von Diener & Diener am Zürichsee
Bild 21/29
Bild: Diener & Diener