Die Meldung in Bildern
Zweite Haut
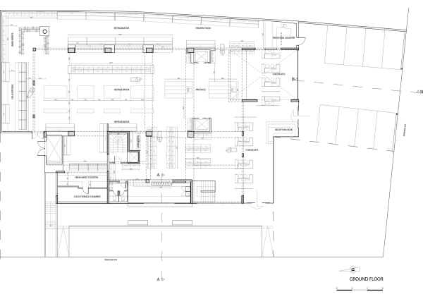
Supermarktumbau von KLAB architecture in Athen
Bild 28/31
Grundriss: Erdgeschoss