Studios und Laden von Aisaka Architects’ Atelier
Bild 18/28
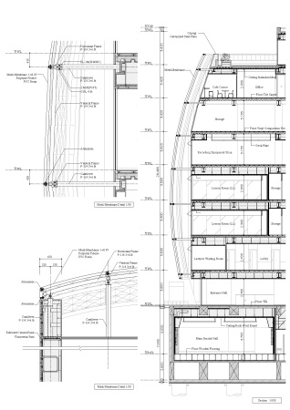
Fassadenschnitt
Bild: Aisaka Architects’ Atelier