Die Meldung in Bildern
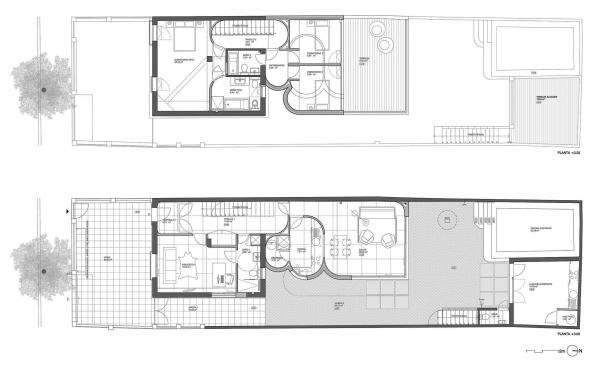
Gekurvt und kanneliert
Studio Wet erweitern Wohnhaus in Sevilla
Bild 12/18
Bild: Studio Wet