Die Meldung in Bildern
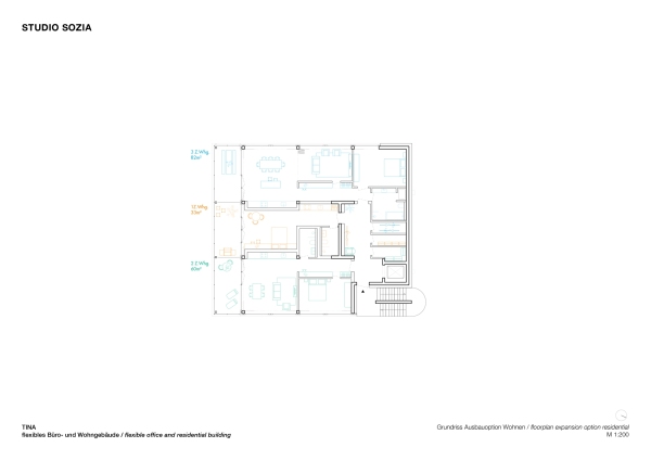
Büro mit Wohnoption
Studio Sozia in Breisach am Rhein
Bild 27/30
Grundriss Wohnen
Bild: Studio Sozia