Die Meldung in Bildern
Münsteraner Gemeinschaft
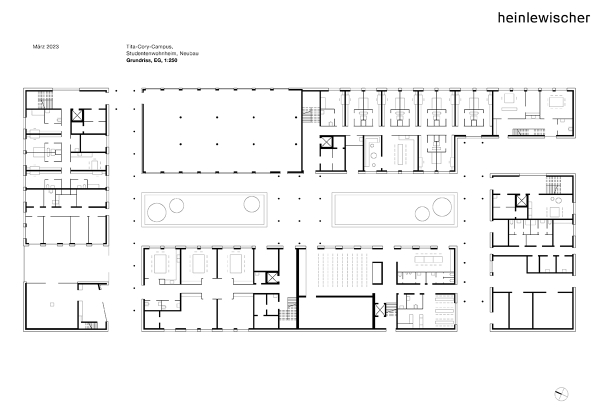
Studierendenwohnheim von heinlewischer
Bild 23/27
Grundriss Erdgeschoss
Bild: heinlewischer