Die Meldung in Bildern
Stroh für Javel
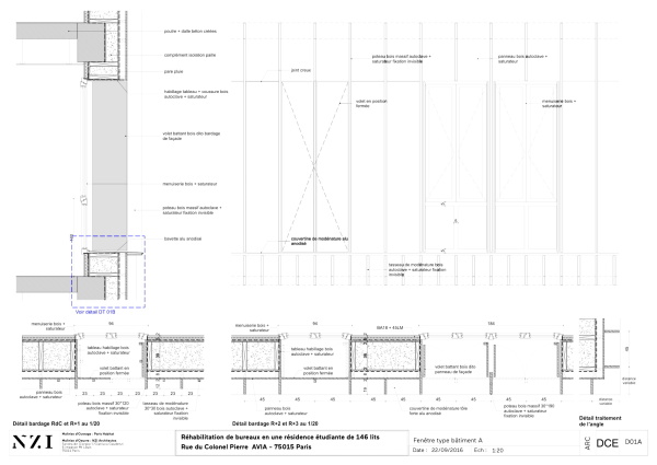
Studierendenwohnheim in Paris von NZI Architectes
Bild 32/33
Bild: NZI Architects