Studierendenwohnheim in Bonn von Schmitz Architekten
Bild 14/31
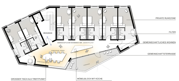
Konzept gemeinschaftliches Wohnen
Bild: Schmitz Architekten