Die Meldung in Bildern
Klappentheater
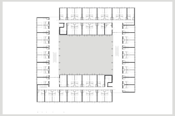
Studentenwohnheim von PPA architecture in Toulouse
Bild 30/37