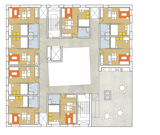
Studentenwohnheim, Aarhus, Cubo Arkitekter, Terroir, Farbe, Energieeffizienz, Dänemark

Bild 12/15