Garten, Gewächshau, Kengo Kuma, international, lixil, wettbewerb, nest we grow, nest, UC Barkeley, barkeley, Hsiu Wei Chang, Hsin-Yu Chen, Fenzheng Dong, Yan Xin Huang, Baxter Smith, Dana Buntrock, Mark Anderson, Takumi Saikawa, holz, holzverbindung, holzkonstruktion, selbstversorgung, china, taiwan, usa, transnational, pflanzen, japan, hokkaido

Bild 26/28

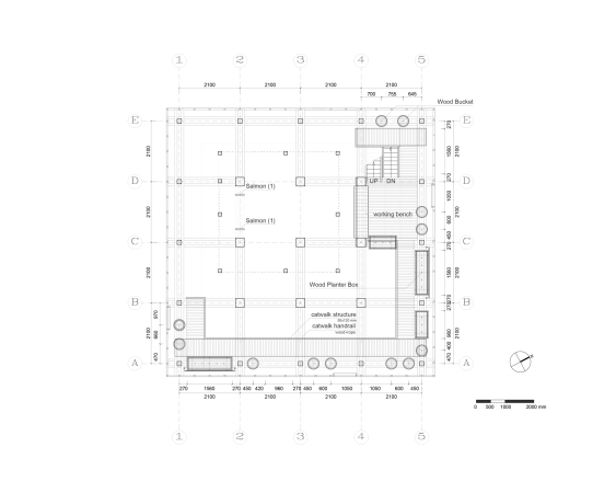
Grundriss 2. Obergeschoss

Bild: CED UC Berkeley / Hsiu Wei Chang, Hsin-Yu Chen, Fenzheng Dong, Yan Xin Huang, Baxter Smith