Steimle Architekten planen in Stuttgart
Bild 6/12
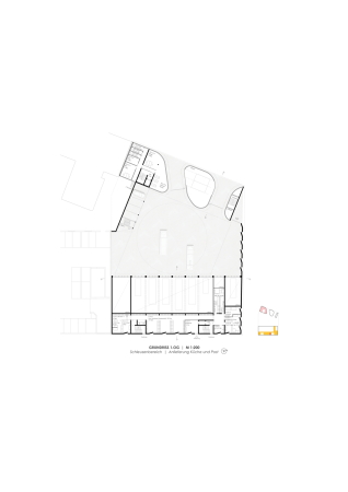
Grundriss 1. Obergeschoss
Bild: Steimle Architekten BDA