Die Meldung in Bildern
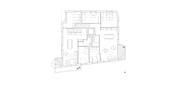
Verschachtelt am Hang
Stadtvilla in Zürich von Igual+Guggenheim
Bild 21/22
Dachgeschoss