Georges De Kinder, Parlement Francophone Bruxellois, Paradise Architecture, SKOPE, Rue du Lombard, 77, 100 Bruxelles, PFB Brüssel, Parlament, Parliament, Brussels, Brussels French Speaking Parliament, Region, Glasfassade, Libelle, Voronoids, Kubus, Glaskubus, Erweiterung, Bürogebäude, Stadtrat, Rathaus

Bild 11/16

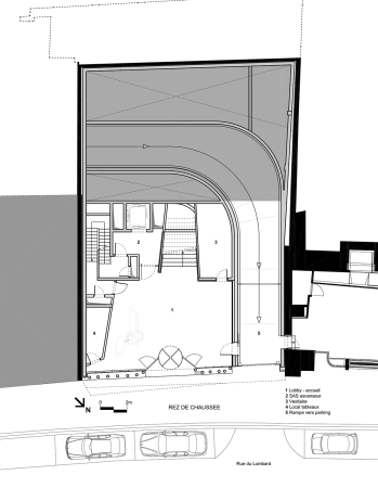
Grundriss Erdgeschoss