Barkow Leibinger, Hotel, Wohnhaus, Vauban, grünes Haus, Nachhaltigkeit, nachhaltiges bauen, Zooey Braun, Frank Barkow, Regine Leibinger, Holzfassade, Holz, Fassadenbewuchs, Weinranken, Ina Reinecke, Green City Hotel, Freiburg, Paula-Modersohn-Platz, Western Red Cedar,

Bild 16/19

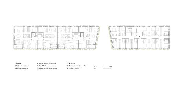
3. Oberggeschoss

Bild: Barkow Leibinger