Die Meldung in Bildern
Kontinuierlich Wohnen
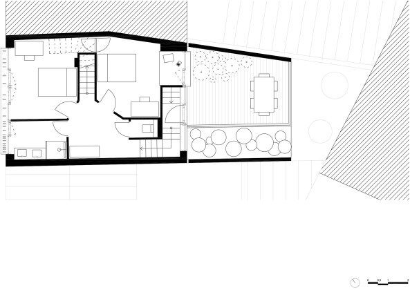
Stadthaus in Paris von Florian Hertweck
Bild 16/22
Grundriss 2.Obergeschoss