Die Meldung in Bildern
Kontinuierlich Wohnen
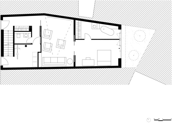
Stadthaus in Paris von Florian Hertweck
Bild 14/22
Grundriss Erdgeschoss