Die Meldung in Bildern
Aus baufällig mach auffällig
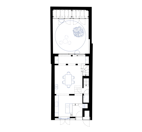
Stadthaus in Köln von rethmeierschlaich
Bild 20/24
Bild: rethmeierschlaich