Die Meldung in Bildern
Urbanissima am Frachtbahnhof
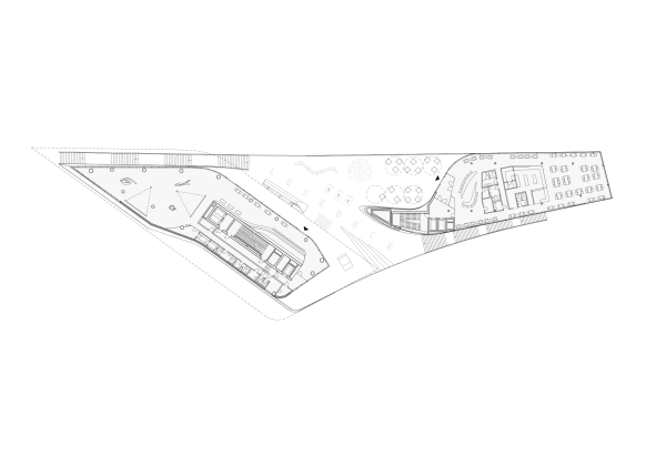
Stadtbibliothek Innsbruck von LAAC
Bild 28/33
Zweites Obergeschoss
Bild: LAAC