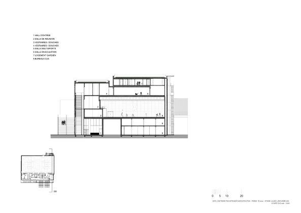
Sportzentrum JULES LADOUMEGU, Paris, 19. Arrondissement, Dietmar Feichtinger, Boulevard Peripherique

Bild 37/40

Bild: Dietmar Feichtinger Architectes