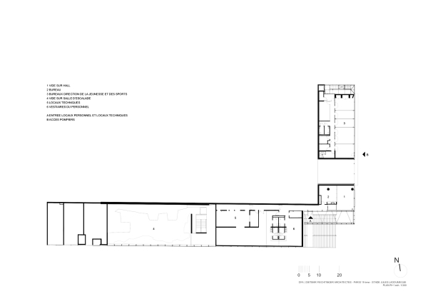
Sportzentrum JULES LADOUMEGU, Paris, 19. Arrondissement, Dietmar Feichtinger, Boulevard Peripherique

Bild 30/40

1. OG

Bild: Dietmar Feichtinger Architectes