Die Meldung in Bildern
Im Wettinger Untergrund
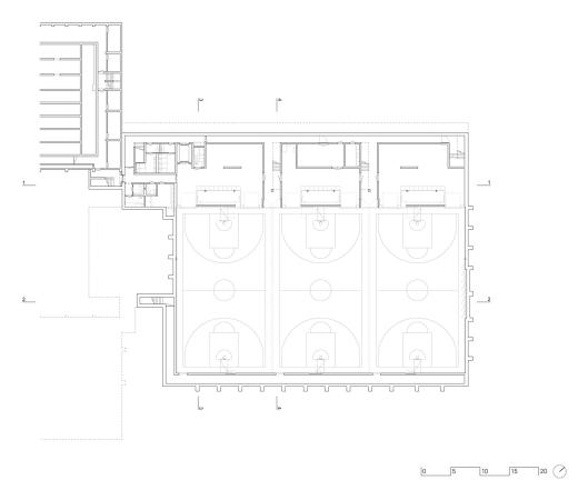
Sporthalle von :mlzd Architekten im Aargau
Bild 19/24
Grundriss drittes Untergeschoss
Bild: :mlzd