Sporthalle von consequence forma architects
Bild 29/38
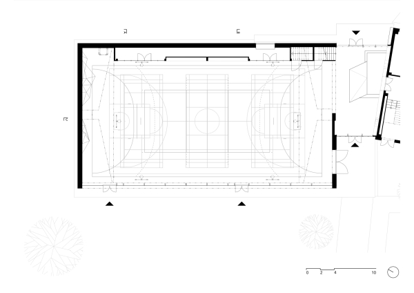
Grundriss Sporthalle
Bild: consequence forma architects