Die Meldung in Bildern
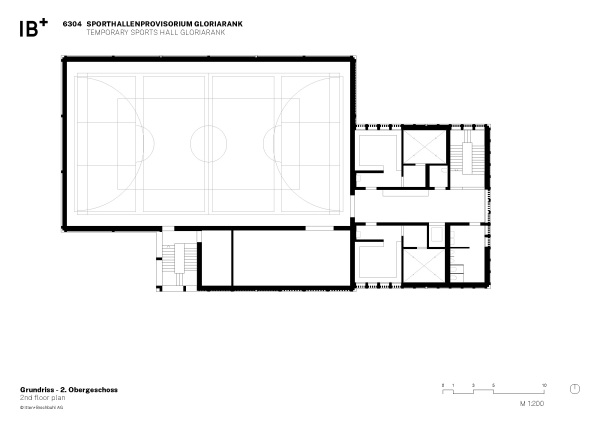
Provisorium am Gloriarank
Sporthalle von Itten+Brechbühl in Zürich
Bild 16/26
Grundriss 2. Obergeschoss
Bild: Itten+Brechbühl