Die Meldung in Bildern
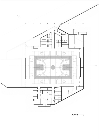
Basketball unterm Hängedach
Sporthalle in Calais von Bureau faceB
Bild 20/32
Untergeschoss
Bild: Bureau FaceB