Die Meldung in Bildern
Phönix aus der Asche
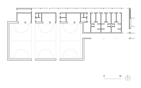
Sporthalle in Berlin von Schulz und Schulz
Bild 22/25
Grundriss
Bild: Schulz und Schulz