Die Meldung in Bildern
Retrospektiv in Revnice
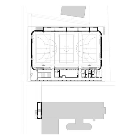
Sporthalle bei Prag von Grido Architekti
Bild 21/24
Grundriss Erdgeschoss
Bild: Grido Architekti