Sporthalle, Neubau, Stadt Hohen Neuendorf, Bahnhofstraße 33b, Numrich Albrecht Klumpp, Ulrike Vogel, Landschaftsarchitekturbüro Armbruster, Borgsdorf, Brandenburg, Schule, 2015, Nina Straßgütl, Spielfeld, sports, Gymnasium, V-Stützen, Grün, Farbe, green, colour, color, Berlin,

Bild 16/19

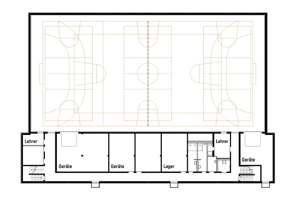
Grundriss Sportfeld