Die Meldung in Bildern
Spielen auf doppeltem Boden
Sportanlage von UAD in Shaoxing
Bild 30/32
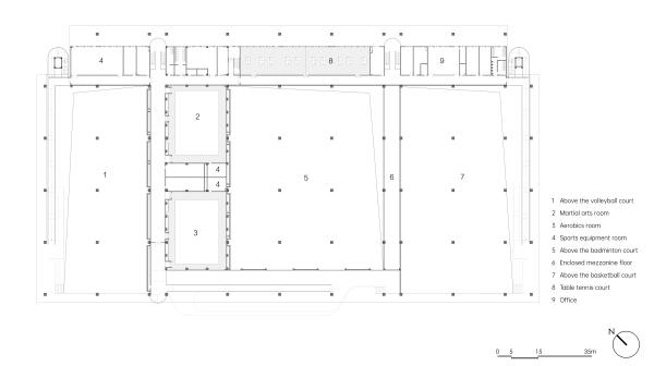
Grundriss Obergeschoss (Hochparterre)
Bild: UAD