Die Meldung in Bildern
Mit Strohballen und Weidengeflecht
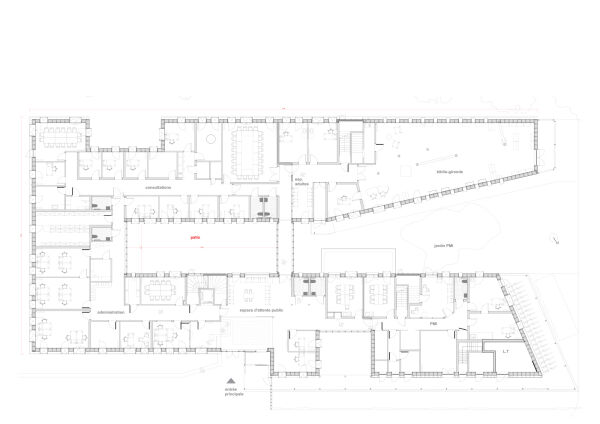
Sozialzentrum von ABF-LAB bei Bordeaux
Bild 15/19
Grundriss Erdgeschoss
Bild: ABF-LAB