Die Meldung in Bildern
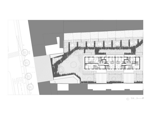
Block im Block
Sozialwohnungsbau in Paris von archi5
Bild 16/22
6. Obergeschoss
Bild: archi5