Die Meldung in Bildern
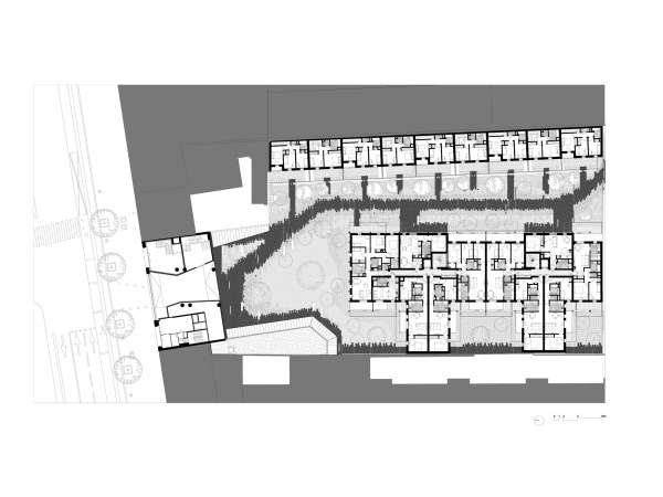
Block im Block
Sozialwohnungsbau in Paris von archi5
Bild 14/22
1. Obergeschoss
Bild: archi5