Die Meldung in Bildern
Heldentat in Holz
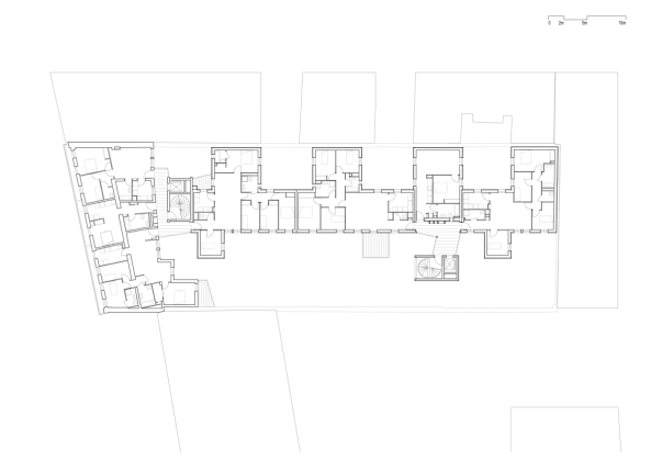
Sozialwohnungsbau in Paris
Bild 14/16
Grundriss OG