Die Meldung in Bildern
Hochskaliert in Wien
Sozialer Wohnungsbau von Gerner Gerner Plus
Bild 16/21
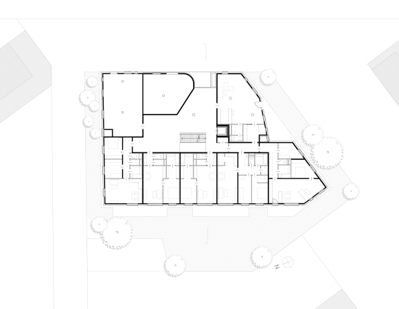
Erdgeschoss
Bild: Gerner Gerner Plus